Freestanding Commercial Premises on Top of Buderim | New Dental Fitout

Description

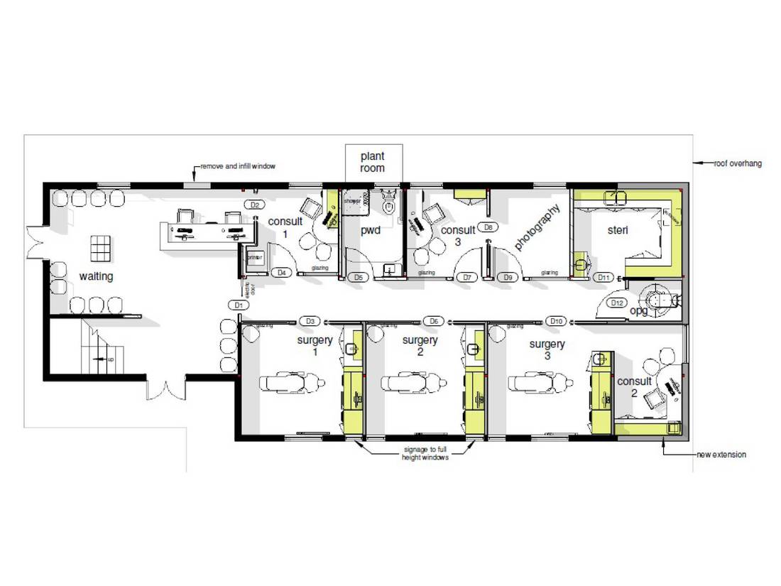
CBRE is delighted to present an exceptionally rare opportunity to acquire a freestanding commercial building featuring a near-new fitout – ideally suited to a dental practice.

~ Land area of 800sqm*
~ Building area of circa 180sqm* over two levels
~ 7 x on site car parks
~ Very modern, near-new Dental fitout
~ Holding income from some existing sub-tenants

The subject property is strategically located 500 metres north-east of Buderim Village, one of the region’s most established and vibrant business precincts.

For Sale by Offers to Purchase closing on Thursday 14th May at 2pm (AEST)

If you would like further details, please contact the exclusive marketing agents Ryan Parry 0419 675 758 or Brendan Robins 0402 159 588 from CBRE.

*Approx.
**Image outlines indicative only

Enquire

Enquiry Form
Privacy(Required)

Buderim, QLD

24-26 Gloucester Road

For Sale by Expression of Interest

This property is part of Portfolio Private Sale

Price: Contact Agent

View Portfolio